[养殖污水处理]含高氨氮水产养殖废水处理新技术
肆意排放的高氨氮含量的集约化水产养殖废水往往会加剧邻近水域水体富营养化,导致养殖水体及周围水域生态严重失衡及环境急速恶化。集约化养殖废水中高氨氮污染源的来源主要为养殖对象的排泄物和残余的食料等〔1〕。目前国内针对处理集约化水产养殖废水中的高氨氮一般采用传统的污水 处理方法,这类处理工艺流程往往占地面积较大,且能耗也较大。本课题组运用新型的处理方法——电极生物膜法〔2〕,同时利用亚硝化细菌实行短程硝化反硝化脱氮的特点,为高氨氮养殖废水的处理提供参考。
电极生物膜法改变传统的外部供氧供氢方式,通过反应器内部电解产生的氧气和氢气作为反应供体,大大提高了转化效率,而且可通过调节电流控制反应速率。短程电极生物膜工艺流程简单、水力停留时间短、占地面积小、运行稳定,非常有应用价值〔3〕。
1 实验装置
采用图 1所示装置进行实验。
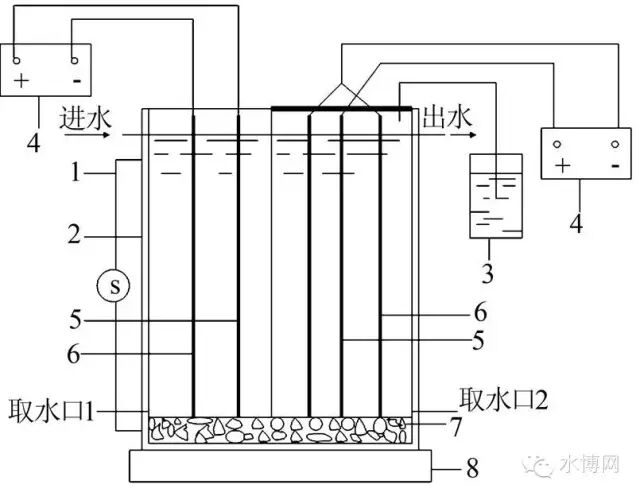
反应器为自主设计的双层玻璃器皿,尺寸为D 140mm×1100mm,有效容积为12.3L,中间设一隔板将其均分为硝化区和反硝化区,底部连通。硝化区上端敞口构成好氧区,阳极和阴极各为1根碳棒;反硝化区上端用20 mm泡沫封好密封构成缺氧区,阳极为1根碳棒,阴极由4根碳棒并联组成。碳棒的长度均为1 000 mm,浸水长度810 mm,碳棒的直径11 mm,用0.5 cm厚的活性炭纤维(ACF)包裹。硝化和反硝化过渡区采用石英砂为填料(厚约75 cm),阻隔氧气进入反硝化区,保证缺氧环境。取水口1取样检测pH、NO2--N、NO3--N,取水口2取样检测pH、NO2--N、NO3--N、氨氮。
图 1 电极生物膜法反应器装置
1—超级恒温槽;2—反应器;3—烧瓶;4—TH_CS2直流数显恒流直流电源;5—阴极;6—阳极;7—活性炭颗粒;8—78-1型磁力搅拌器。
2 培养、纯化及驯化
培养:定期加入(NH4)2SO4,使氨氮质量浓度为400mg/L,以乙酸为碳源,C/N维持为1,并添加适量微量元素。经过20d的培养,在硝化区阳极碳棒的活性炭纤维周围均匀分布黄色絮体,反硝化区阴极碳棒的活性炭纤维周围均匀分布浅黄色、海绵状絮体,认定挂膜已成功〔4, 5〕。
纯化:纯化过程控制的温度为(30±1)℃,pH为7.5~8.5,定期加入模拟水样,模拟水样由自来水、(NH4)2SO4、CH3COONa、KH2PO4组成,其中氨氮质量浓度400mg/L,C/N为1,经过15 d培育后,得出硝化区的亚硝化率大于50%,认为纯化成功。
驯化:在纯化的基础上,硝化区和反硝化区分别接通直流电进行驯化,硝化区和反硝化区保持电流在40mA,并定期加入模拟水样。经过连续15 d的培养,检测到氨氮的去除率达到50%,认定驯化完成〔6〕。
3 分析方法
DO:溶解氧仪法;pH:pH计测量法;氨氮:纳氏试剂比色法;NO2--N:N-(1-萘基)-乙二胺光度法;NO3--N:酚二磺酸光度法;温度:温度计测量法。
4 结果与分析
影响本实验的因素有pH、DO、C/N、温度、HRT、电流和氨氮浓度等。实验中控制水样流量为12L/d。由于反硝化阶段环境密闭,可近似认为反硝化阶段DO小于0.5mg/L〔7〕,同时反应过程中pH维持在6~9,这一区间正好适宜硝化菌和反硝化菌的生长〔8〕。硝化区的电流保持在40 mA。
4.1 pH对处理效果的影响
在正交实验的基础上,取氨氮初始质量浓度为400mg/L,温度为35℃,反硝化区的电流为100mA,C/N为1,使用1mol/L的HCl或NaOH分别调节pH为4、5、6、7、8、9、10、11、12,测定6h后的氨氮浓度,结果表明,亚硝化菌和反硝化菌对pH变化十分敏感,反硝化菌的适宜pH为7~9,亚硝化菌的适宜pH为8~10,当pH低于5和高于12时,去除率均低于30%。pH=8时,氨氮的去除率最高。
4.2 温度对处理效果的影响
当反硝化区通以直流电流100mA,固定氨氮质量浓度为400mg/L,C/N为1,HRT=6h,考察温度变化对处理效果的影响。结果表明,亚硝化菌和反硝化菌对温度的变化同样十分敏感,在本实验中亚硝化菌是优势菌,氨氮的去除率随亚硝化菌处理能力的增加而增加,硝化反应的适宜温度为30~40℃,低于或高于该温度段,硝化效果均下降,在5℃时几乎停止;反硝化反应的适宜温度为25~35℃。这主要是因为只有在适宜的温度范围内,细菌体内酶的活性才得以充分发挥,代谢加快,转化率增加。
4.3 反硝化区电流对处理效果的影响
当控制温度为35 ℃,氨氮质量浓度为400 mg/L,C/N为1,改变反硝化区的电流分别为0、20、40、60、80、100、120 mA,处理6 h后,考察电流对处理效果的影响,结果见图 2。
图 2 反硝化区电流变化对处理效果的影响
从图 2可以看出,亚硝化菌和反硝化菌对电流变化有一定的感应,在本实验中电流100mA是一个界限,在100mA以内硝酸盐氮和亚硝酸盐氮的去除率随电流的增加而明显提高;而超过100mA时,硝酸盐氮和亚硝酸盐氮的去除率均出现随电流的增加而降低现象,其中,对硝酸盐氮影响更明显。产生界限的原因主要是反应器有个电流极限(电流极限与反应的容积有关),电流极限以内的低电流能促进反硝化反应。造成超过极限电流时反硝化能力下降的原因有两个方面:(1)电流越大,反硝化菌被电死的概率越大;(2)超过电流极限,阴极产生的氢过多,在生物膜内形成“氢抑制”现象〔4〕,抑制反硝化进行。
4.4 C/N对处理效果的影响
当控制温度为35 ℃,氨氮质量浓度为400 mg/L,反硝化区的电流为100 mA时,处理6 h,考察C/N对处理效果的影响,结果见图 3。
图 3 不同的C/N对处理效果的影响
从图 3可以看出,C/N越大,硝化和反硝化的效果越好,当C/N超过1时,处理率均在90%以上,而当C/N小于0.5时,处理效果相对来说差很多。究其原因主要是:亚硝酸菌为自养型微生物,增加碳源可促进亚硝化细菌的生长,进而提高氨氮向亚硝酸盐氮的转化率,使反硝化段进水中的亚硝酸盐氮浓度增加,为反硝化过程提供了充足的底物;在反硝化区C/N增大,则增大了电子供体,促进反硝化的顺利进行。结合处理效果和成本,C/N最佳值为1。
4.5 HRT对处理效果的影响
当控制温度为35 ℃,反硝化区的电流为100 mA,氨氮质量浓度为400 mg/L,C/N为1时,考察HRT对处理效果的影响,结果见图 4。
图 4 水力停留时间对处理效果的影响
从图 4可以看出,刚开始的几个小时内氨氮和硝酸盐氮的去除速率增长很快,而HRT=3 h时,亚硝酸盐氮出现了积累,当HRT=6 h时,所有的测试项目的去除率均达到了90%以上,并且呈现随HRT的增加,去除率增大。
4.6 氨氮负荷对脱氮效果的影响
当控制温度为35 ℃,反硝化区的电流为100 mA,C/N为1,处理6 h后,考察氨氮负荷对脱氮效果的影响,结果见图 5。
图 5 氨氮负荷对处理效果的影响
从图 5可以看出,在进水氨氮质量浓度为500mg/L以下时,氨氮的去除率在90%以上,超过500mg/L,去除率低于90%,氨氮的去除率随氨氮浓度的增加呈直线下降。主要是电解电流有限,随着氨氮负荷的增加,硝酸盐氮出现了大量的积累,从而限制了脱氮能力。
4.7 实际水样的处理效果
利用本装置,取衡阳市某甲鱼养殖场的养殖废水进行处理,测量该废水中的氨氮为385.6mg/L,控制温度为35℃,反硝化区的电流为100mA,进水的 C/N为1。处理结果见图 6。
图 6 实际水样的处理效果
从图 6可以看出,当处理时间超过6h后氨氮的去除率达到93.5%以上,但相对于模拟水样的98.5%有一定的差距,影响的原因是实际水样中的螺旋藻及其他藻类物质对氨氮的去除有一定的影响。
推荐
-
-
QQ空间
-
新浪微博
-
人人网
-
豆瓣
